【 当イベントは完全予約制です 】
2025年のまとめ!人気だったおすすめ間取りを大公開いたします!
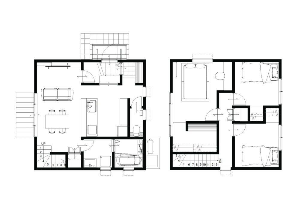
注文住宅を建てるなら、土地に合わせるのはもちろん、暮らしにも寄り添う間取りで建てたいですよね。
今より快適に暮らしたい方のための、間取りを考え抜く相談会です🌿

こんなお悩みはありませんか?
| 間取りってどう決めればいいの? | |||||||||||||
| 何も決まってなくても大丈夫? | |||||||||||||
| ご家族人数に対して最適な広さがわからない | |||||||||||||
| デッドスペースを活用したい | |||||||||||||
| お子様が巣立った後のことなど、考えることが多くて困る |


💡このイベントでわかること
| たくさんの事例から間取りを参考にできる | ||||||||||||||
| 快適に暮らすポイントが知れる | ||||||||||||||
| 図面だけではわからない生活動線をモデルハウスで体感 | ||||||||||||||
| プランナーがライフスタイルに沿ったご提案をします | ||||||||||||||
| 生活感の出ない収納の配置など、役にたつ知識満載! |
ー イベント詳細 ー
◎ 開催日:12月20日(土)・21日(日)・22日(月)
◎ 開催時間:10:00~17:00
◎ 開催場所
・鳥取モデルハウス 📍Googlemap
・倉吉モデルハウス 📍Googlemap
・米子モデルハウス 📍Googlemap
◎ 参加費:無料

👦こんな方におすすめのイベントです
| デザイン・性能・コスパのバランスが良い家づくりをしたい方 | ||||||||||||||
| 家事効率の良い家に住みたい方 | ||||||||||||||
| 家づくりに妥協したくない方 | ||||||||||||||
| 小さなお子様のいる方 | ||||||||||||||
| 今のお住まいに不満のある方 |


\ ご来場プレゼントをご用意しています🎁 /

【 Amazonギフト特典進呈条件 】
・初めてご来場の方に限ります
・特典の付与は建築意思のある方に限らせて頂きます
・他社でご契約済の方はご遠慮くださいますようお願いします
・ご友人とのご来場は特典対象外となり、原則お断りしております
・進呈はご来場後1週間〜2週間後となります
◎鳥取オフィス:0857-30-3330
◎倉吉オフィス:0858-36-1919
◎米子オフィス:0859-30-4820